SS-V:2060 ピン接合クロスの面内振動
テスト番号VM07 両端がピン接合のクロスの最初の8個の固有周波数を求めます。
定義

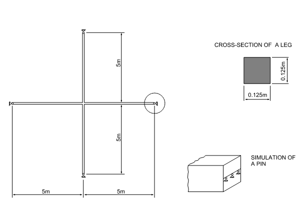
図 1.
ピンは、直線に適用されるゼロ変位を介してシミュレートされます。クロスの前面は、面外変位によって固定されます。
単位はSIです。
- 特性
- 値
- 弾性係数
- 2e+11 N/m2
- ポアソン比
- 0.3
- 質量密度
- 8000 kg/m3
結果
| 基準解 | SimSolid | %差異 | |
|---|---|---|---|
| モード1 [Hz] | 11.336 | 11.312 | -0.21% |
| モード2 [Hz] | 17.709 | 17.810 | 0.57% |
| モード3 [Hz] | 17.709 | 17.840 | 0.74% |
| モード4 [Hz] | 17.709 | 17.840 | 0.74% |
| モード5 [Hz] | 45.345 | 45.130 | -0.47% |
| モード6 [Hz] | 57.390 | 57.360 | -0.05% |
| モード7 [Hz] | 57.390 | 57.370 | -0.03% |
| モード8 [Hz] | 57.390 | 57.550 | -0.28% |